Notre engagement envers l’excellence !
Découvrez nos projets !
À louer
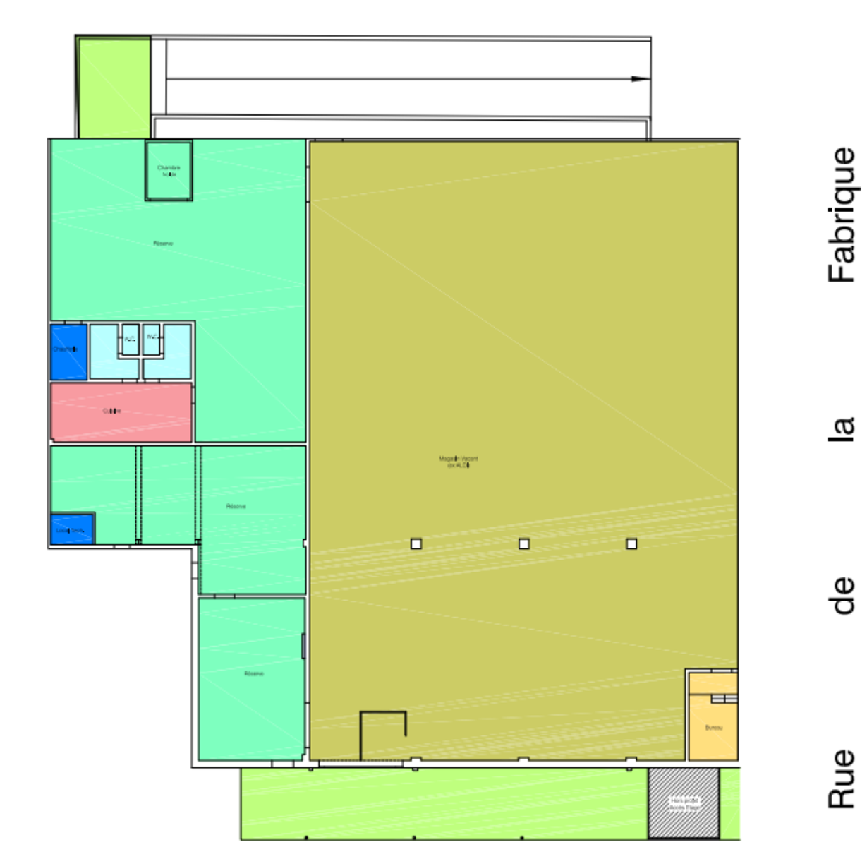
Flémalle Commerce de 1.015m² à Louer
5 075 € /mois
- 6, Rue de la Fabrique. 4400 Flemalle, Belgique.
- 1015 m² Habitable
Description du bien
Iaci vous propose à la location cette surface commerciale de 1015m² dans un retail park le long de la Grand Route à Flémalle. Les autres occupants sont un All you Can Eat (cuisine asiatique) et un supermarché bio. Le site est facilement accessible depuis l’autoroute et dispose d’un parking gratuit d’une centaines de places.
Configuration
- Parking Oui
- Superficie totale 1.015 m²
