Notre engagement envers l’excellence !
Découvrez nos projets !
Marchienne-au-Pont – Entrepôt avec bureaux à vendre
750 000 €
- Rue Chapelle Beaussart. 6030 Charleroi-Marchienne-au-Pont, Belgique.
- 638 m² Habitable
- 6179 m² Terrain
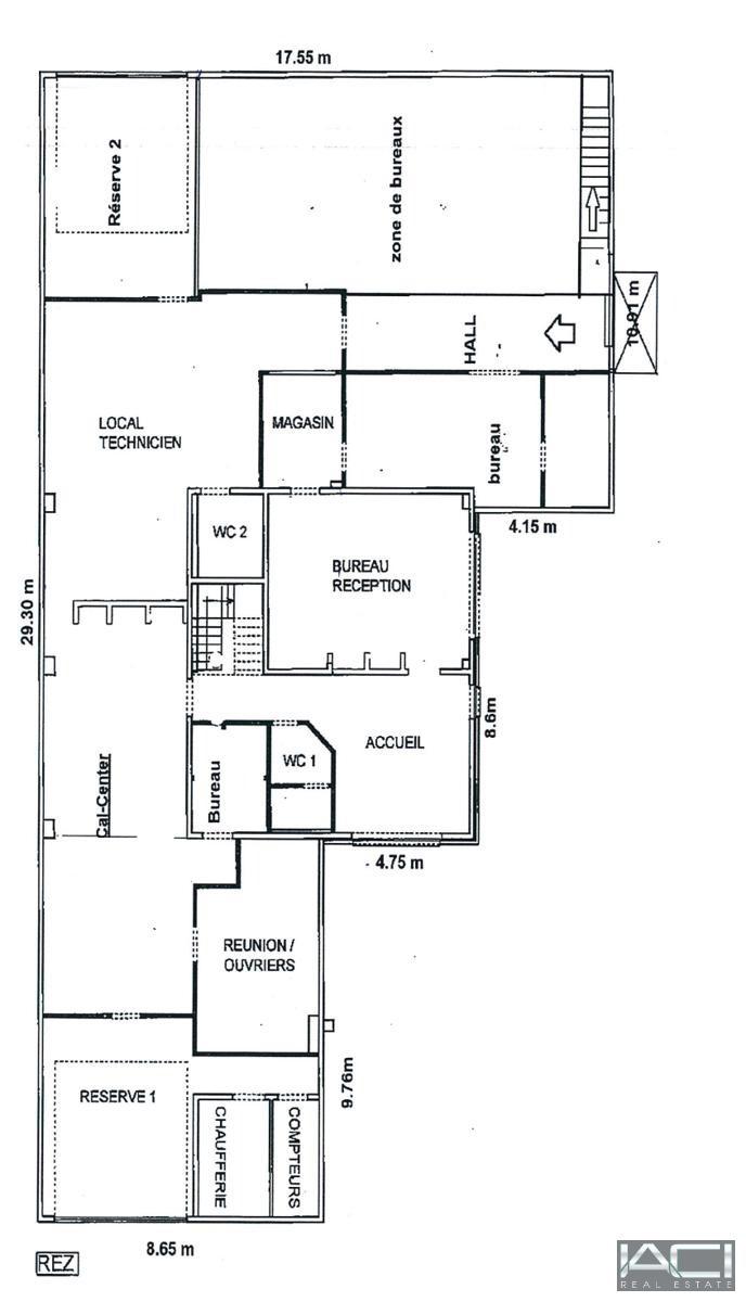
Description du bien
Situé à Marchienne-au-Pont, nous vous proposons un entrepôt avec bureaux implanté sur une parcelle de 61 ares 79 centiares
Surface bâtie au sol : 391,66 m²
Surface étage : 246,65 m²
Parking asphalté, clôturé, sécurisé : 4.358 m²
Construction Ossature métallique offrant la possibilité d’une hauteur sous plafond de 4,40 m à 4,90 m.
Equipements : Chauffage central gaz (Buderus) avec Boiler thermodynamique, Système vidéo-surveillance
Pour infos et visites, veuillez contacter Monsieur Gilles Hallet au 0470/56 15 02
Configuration
- Superficie totale 638 m²
- Superficie terrain 6.179 m²
Informations énergétiques
- Type de chauffage gaz (chau. centr.)
