Notre engagement envers l’excellence !
Découvrez nos projets !
Hall PME – PMI neuf
1 075 000 €
- Route de la Basse Sambre. 5060 Tamines, Belgique.
- 3354 m² Habitable
- 8280 m² Terrain
Description du bien
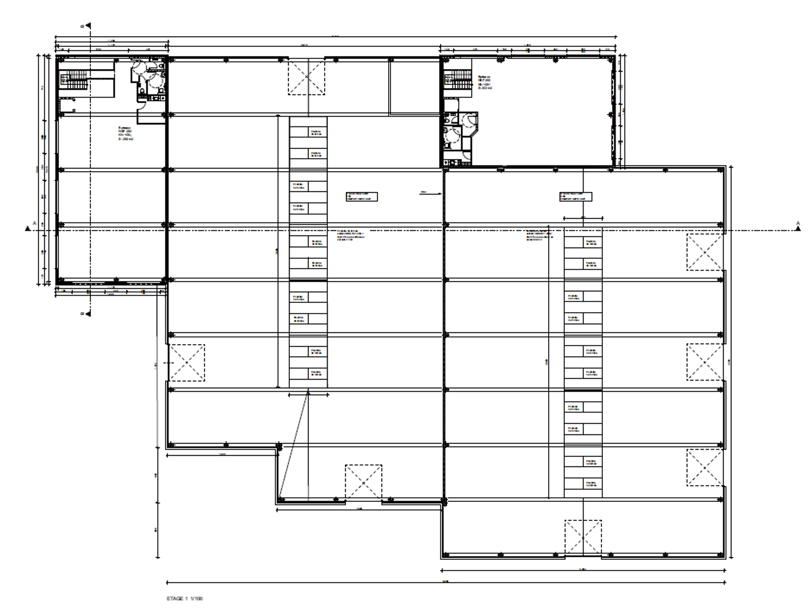
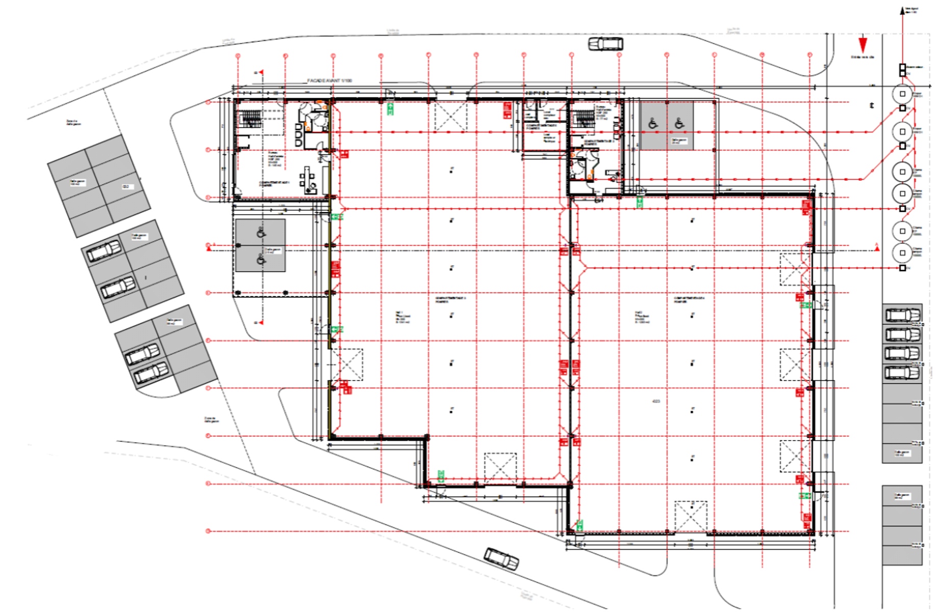
A l’angle de la Route de la Basse Sambre (N90) et de la Rue Bonne Espérance, proche du futur site de Google, IACI vous propose un terrain avec permis pour la construction d’un hall PME neuf de 3.354 m² avec hauteur sous poutre de 6 mètres. Le hall est prévu pour être utilisé d’un seul tenant ou divisé en 2 parties, chacune avec un bureau en mezzanine, une entrée séparée et 3 portes sectionnelles. Le hall 1 comprend un entrepôt de 1.341 m², un espace accueil au RDC de 145 m² et un bureau de 259 m². Le hall 2 aura un entrepôt de 1.293 m², un espace accueil au RDC de 77m² et un bureau de 203 m². 4 emplacements PMR couverts et 35 parkings extérieurs seront créés sur le site et une réserve foncière permettra d’en rajouter une quinzaine en cas de besoin.
Vente faite sous forme d’un share deal – vente de 100% des parts de la société.
Accessibilité idéale à front de la N90 reliant Charleroi à Namur.
Ce prix comprend la vente du terrain + PERMIS obtenu
Pour toute information complémentaire, veuillez contacter Ludovic Coulon au 0495574052 ou sur ludovic.coulon@iaci.be
Configuration
- Superficie totale 3.354 m²
- Superficie terrain 8.280 m²
